ºæ»ÔÃæ¶èÆêÍÕ¤ÎÄÂÂß
ºæ»ÔÃæ¶èÆêÍÕ¤ÎÂߤ·ÁÒ¸Ëʪ·ï ¾ÜºÙ
¤³¤Îʪ·ï¾ðÊó¤Ï¡Ú¡Û¤ËºîÀ®¤µ¤ì¤¿¤â¤Î¤Ç¤¹¡£













ºåÏÂÆ»¡ÚºæIC¡Û¶á¤¯¡¢
ÂçºåÉܺæ»ÔÆêÍÕ¤ÎÁҸ˻ö̳½ê¤¬Æþµï¼ÔÊç½¸Ãæ¤Ç¤¹¡£
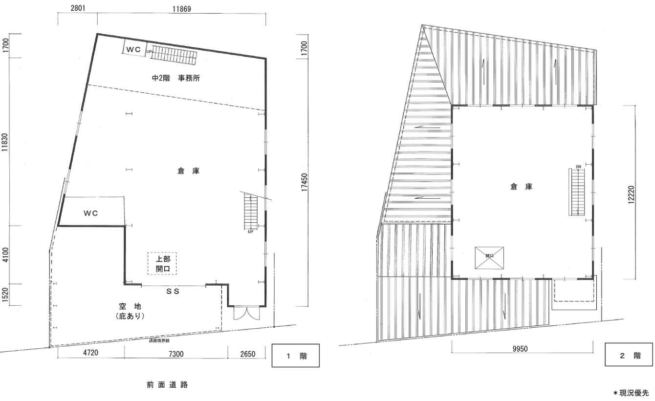
ÉßÃÏÌÌÀÑ¡¡332.12Ö¡ÊÌó100ÄÚ¡Ë
·úʪ2³¬·ú¤Æ¡¡±ä¤Ù365.79Ö¡ÊÌó110ÄÚ¡Ë
1³¬-214.19Ö
2³¬-118.48Ö
Æþ¸ý¥·¥ã¥Ã¥¿¡¼¹â¤µÌó3.5£í¡¢1³¬Éôʬŷ°æ¹â¤µÎ²¼4£í¡£
Å·°æ¥Û¥¤¥¹¥È¥¯¥ì¡¼¥ó1´ð¤Ï»ÄÃÖʪ¤È¤·¤Æ»ÈÍѲÄǽ¤Ç¤¹¡£
ÉßÃÏÆâ1³¬¤Ë¤ÏÈߤÎͤëÃó¼Ö¥¹¥Ú¡¼¥¹¤âͤê¤Þ¤¹¤Î¤Ç¡¢
±«¤ÎÆü¤â²Ù»«¾ì¤È¤·¤Æ»ÈÍѤǤ¤Þ¤¹¡£
¹©¶ÈÃϰè¤Ë¤Ê¤ê¤Þ¤¹¤Î¤Ç¶È¼ï¡¦ÍÑÅӤϤ´ÁêÃ̲¼¤µ¤¤¡£
| À®Ìó¾õ¶· | |
|---|---|
| Ä¡¡ÎÁ | - |
| ´ÉÍýÈñ¡§-¶¦±×Èñ¡§- | |
| Éß¶â¡§-¡ÃÎé¶â¡§- | |
| Êݾڶ⡧-¡Ã²òÌó°ú¡§- | |
| ÄÚ¡¡¿ô | 110.63ÄÚ¡¡·úʪÌÌÀÑ¡§365.73m2 |
| È÷¹Í | ¡Ý |
|---|
| ½êºßÃÏ | ºæ»ÔÃæ¶è ÆêÍÕ google¥Þ¥Ã¥×¤Ç¤ß¤ë |
|---|---|
| ¸òÄÌ | ÀôË̹â®ŴƻÀþ ¡Ö¿¼°æ±Ø¡×±Ø ¡Ý ¡Ý |
| ʪ·ï¹½Â¤ | Å´¹ü | ʪ·ï³¬ÁØ | 2³¬·ú |
|---|---|---|---|
| ʪ·ï¼ïÊÌ | ÁÒ¸Ë/¹©¾ì | ´°À®Ç¯·î | 1984ǯ10·î |
| ÍÑÅÓÃϰè | ¹©¶ÈÃϰè | ||
| ʪ·ïÀßÈ÷ | ¥·¥ã¥¿¡¼¥È¥¤¥ìÃó¼Ö¾ì¥ê¥Õ¥ÈÅŵ¤¾å¿åÆ»¸ø¶¦²¼¿å ¡Ý | ||
| ʪ·ïÈÖ¹æ | US1-05564 |
|---|---|
| ¥µ¥¤¥È̾ | Âçºå¤ÎÂßÁҸˡ¦Âß¹©¾ì¡¦ÇäÇã |
072-737-6699
½êºßÃÏ¡§ÂçºåÉÜ̧ÌÌ»Ô̧ÌÌ1-9-21
¥¢¥¯¥»¥¹¡§ºåµÞ̧Ì̱ؤè¤êÅì¤ØÅÌÊâ2ʬ¡ª±ØÁ°¥í¡¼¥¿¥ê¡¼¤è¤ê¥¹¥°ÌܤÎÁ°¡ª
06-6657-7090
½êºßÃÏ¡§ÂçºåÉÜÂçºå»Ô½»Ç·¹¾¶èÆî²Ã²ì²°2-8-25¥»¥¸¥å¡¼¥ë24 1³¬
¥¢¥¯¥»¥¹¡§Âçºå¥á¥È¥í½»Ç·¹¾¸ø±à±Ø4Èֽиý¿·¤Ê¤Ë¤ï¶Ú¤òÅϤäƥ¹¥°
»÷¤¿Êª·ï¤òõ¤·¤¿¤¤¡¢ºÇ¿·¤Îʪ·ï¾ðÊó¤òÃΤꤿ¤¤¡¢´õ˾¤Îʪ·ï¾ò·ï¤Ç¸«¤Ä¤±¤ÆÍߤ·¤¤¡¢¤Ê¤É¤ªµ¤·Ú¤Ë¤ªÌ䤤¹ç¤ï¤»²¼¤µ¤¤¡£