大阪市此花区春日出中1の賃貸
大阪市此花区春日出中1の貸し倉庫物件 詳細
この物件情報は【】に作成されたものです。













大阪市此花区春日出中1丁目
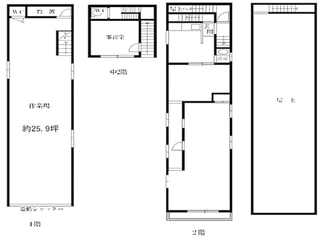
2階建て1棟ミニビル、作業場倉庫兼事務所にピッタリな物件です。
延べ約51.9坪
1階-25.9坪
2階-26坪
1階部分は倉庫作業場に、中2階・2階部分は事務所としてご利用可能です!
入口シャッター高3490・幅4085
1階作業場倉庫部分にホイストリフト(2t)の残置も有ります。
近隣住宅街になりますので、音・臭いの出る業種は不可になりますが
その他の用途はご相談下さい。
| 備考 | − |
|---|
| 所在地 | 大阪市此花区 春日出中1 googleマップでみる |
|---|---|
| 交通 | 阪神なんば線 「千鳥橋駅」駅 − − |
| 物件構造 | 鉄骨 | 物件階層 | 2階建 |
|---|---|---|---|
| 物件種別 | 倉庫 | 完成年月 | − |
| 用途地域 | 準住居地域 | ||
| 物件設備 | シャター電動シャッターエアコントイレ照明リフト電気上水道公共下水動力電気 − | ||
| 物件番号 | US1-05536 |
|---|---|
| サイト名 | 大阪の貸倉庫・貸工場・売買 |
06-6657-7090
所在地:大阪府大阪市住之江区南加賀屋2-8-25セジュール24 1階
アクセス:大阪メトロ住之江公園駅4番出口新なにわ筋を渡ってスグ
似た物件を探したい、最新の物件情報を知りたい、希望の物件条件で見つけて欲しい、などお気軽にお問い合わせ下さい。