Âçºå»ÔÅìÍäÀî¶èÂç¶Í1¤ÎÄÂÂß
Âçºå»ÔÅìÍäÀî¶èÂç¶Í1¤ÎÂߤ·ÁÒ¸Ëʪ·ï ¾ÜºÙ
¤³¤Îʪ·ï¾ðÊó¤Ï¡Ú¡Û¤ËºîÀ®¤µ¤ì¤¿¤â¤Î¤Ç¤¹¡£













Æâ´Ä¾õÀþ¤«¤é¤â¶á¤¤¡¢
Âçºå»ÔÅìÍäÀî¶èÂç¶Í1ÃúÌÜ¡£
ÉßÃÏÌÌÀÑ¡¡Ìó495Ö¡ÊÌó149.79ÄÚ¡Ë¡¢¥Õ¥í¥ó¥È¥ä¡¼¥ÉÉÕ¤¤Î
ÁҸˡ¦»ö̳½ê¤¬Êç½¸Ãæ¤Ç¤¹¡ª
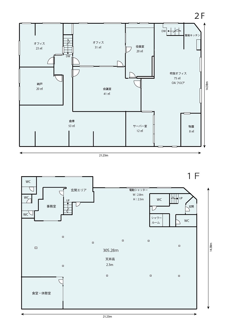
·úʪÉôʬ¡¢2³¬·ú¤Æ¡¡±ä¤ÙÌó610.56Ö¡ÊÌó184.69ÄÚ¡Ë
³Æ³¬-Ìó305.28Ö¡ÊÌó92.34ÄÚ¡Ë
1³¬¤ÏÁҸ˻ÅÍÍ¡¢2³¬¤Ï´Ö»ÅÀÚ¤ê¤òÆþ¤ì¤¿»ö̳½ê»ÅÍͤˤʤê¤Þ¤¹¡£
¥Õ¥í¥ó¥È¥ä¡¼¥É¤Ë¤Ï²°º¬¤¬ÉÕ¤¤¤Æ¤¤¤Þ¤¹¤Î¤Ç¡¢±«Å·»þ¤Î²ÙʪÈÂÆþ¡¢
ºî¶È¤âÌäÂꤢ¤ê¤Þ¤»¤ó¡ª
ÊÌÅÓ¡¢Æ»Ï©¤ò¶´¤ó¤À¸þ¤«¤¤¤ËÃó¼Ö¥¹¥Ú¡¼¥¹¡ÊÌó141.75֡ˤâ
ͤê¤Þ¤¹¡£
»ÔÆâÃæ¿´¤«¤é¤â¶á¤¯¡¢ÊÝ´ÉÁҸ˷ó»ö¶È½ê¤Ë¤Ï¥Ô¥Ã¥¿¥ê¤Îʪ·ï¤Ç¤¹¡£
| À®Ìó¾õ¶· | |
|---|---|
| Ä¡¡ÎÁ | - |
| ´ÉÍýÈñ¡§-¶¦±×Èñ¡§- | |
| Éß¶â¡§-¡ÃÎé¶â¡§- | |
| Êݾڶ⡧-¡Ã²òÌó°ú¡§- | |
| ÄÚ¡¡¿ô | 184.69ÄÚ¡¡·úʪÌÌÀÑ¡§610.56m2 |
| È÷¹Í | ¡Ý |
|---|
| ½êºßÃÏ | Âçºå»ÔÅìÍäÀî¶è Âç¶Í1 google¥Þ¥Ã¥×¤Ç¤ß¤ë |
|---|---|
| ¸òÄÌ | Âçºå¥á¥È¥íº£Î¤¶ÚÀþ ¡Ö¤À¤¤¤É¤¦ËΤ±Ø¡×±ØÅÌÊâ 5ʬ |
| ʪ·ï¹½Â¤ | Å´¹ü | ʪ·ï³¬ÁØ | 2³¬·ú |
|---|---|---|---|
| ʪ·ï¼ïÊÌ | ÁÒ¸Ë | ´°À®Ç¯·î | 1964ǯ1·î |
| ÍÑÅÓÃϰè | Âè2¼ïÃæ¹âÁؽ»µïÀìÍÑÃϰè | ||
| ʪ·ïÀßÈ÷ | ¥·¥ã¥¿¡¼ÅÅÆ°¥·¥ã¥Ã¥¿¡¼¥È¥¤¥ìµëÅòÃó¼Ö¾ìÅŵ¤ÅÔ»Ô¥¬¥¹¾å¿åÆ»¸ø¶¦²¼¿åưÎÏÅŵ¤ ¡Ý | ||
| ʪ·ïÈÖ¹æ | US1-05523 |
|---|---|
| ¥µ¥¤¥È̾ | Âçºå¤ÎÂßÁҸˡ¦Âß¹©¾ì¡¦ÇäÇã |
072-737-6699
½êºßÃÏ¡§ÂçºåÉÜ̧ÌÌ»Ô̧ÌÌ1-9-21
¥¢¥¯¥»¥¹¡§ºåµÞ̧Ì̱ؤè¤êÅì¤ØÅÌÊâ2ʬ¡ª±ØÁ°¥í¡¼¥¿¥ê¡¼¤è¤ê¥¹¥°ÌܤÎÁ°¡ª
06-6657-7090
½êºßÃÏ¡§ÂçºåÉÜÂçºå»Ô½»Ç·¹¾¶èÆî²Ã²ì²°2-8-25¥»¥¸¥å¡¼¥ë24 1³¬
¥¢¥¯¥»¥¹¡§Âçºå¥á¥È¥í½»Ç·¹¾¸ø±à±Ø4Èֽиý¿·¤Ê¤Ë¤ï¶Ú¤òÅϤäƥ¹¥°
»÷¤¿Êª·ï¤òõ¤·¤¿¤¤¡¢ºÇ¿·¤Îʪ·ï¾ðÊó¤òÃΤꤿ¤¤¡¢´õ˾¤Îʪ·ï¾ò·ï¤Ç¸«¤Ä¤±¤ÆÍߤ·¤¤¡¢¤Ê¤É¤ªµ¤·Ú¤Ë¤ªÌ䤤¹ç¤ï¤»²¼¤µ¤¤¡£