Âçºå»Ô½»Ç·¹¾¶è¿·ËÌÅç7¤ÎÄÂÂß
Âçºå»Ô½»Ç·¹¾¶è¿·ËÌÅç7¤ÎÂߤ·ÁÒ¸Ëʪ·ï ¾ÜºÙ
¤³¤Îʪ·ï¾ðÊó¤Ï¡Ú¡Û¤ËºîÀ®¤µ¤ì¤¿¤â¤Î¤Ç¤¹¡£













Âçºå»Ô½»Ç·¹¾¶è¿·ËÌÅç7ÃúÌÜ
ÁҸˤ¬·ú¤Áʤ֥¨¥ê¥¢¤ÎÁҸ˺î¶È¾ì¤¬¶õ¤¤Þ¤·¤¿¡£
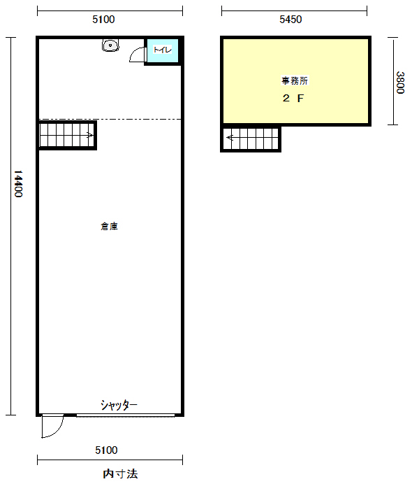
±ä¤Ù¡¡76.28Ö
1³¬¤ÏÁҸ˺î¶È¾ì¡¢Ãæ2³¬¤Ë»ö̳½ê¥¹¥Ú¡¼¥¹¤¬Í¤ê¤Þ¤¹¡£
´ðËܤÏÁҸ˻ö̳½ê»ÅÍͤǤ¹¤¬¡¢¶È¼ï¤Ë¤è¤êºî¶È¾ì¤È¤·¤Æ¤â
¤´ÍøÍѲÄǽ¤Ç¤¹¡ª
¿áÈ´¤±ÉôÅ·°æ¹â¤â¤½¤³¤½¤³Í¤ë·úʪ¤Ç¤¹¡£
¤ªÌä¹ç¤»¤ªÂÔ¤Á¤·¤Æ¤ª¤ê¤Þ¤¹¡£
| À®Ìó¾õ¶· | |
|---|---|
| Ä¡¡ÎÁ | - |
| ´ÉÍýÈñ¡§-¶¦±×Èñ¡§- | |
| Éß¶â¡§-¡ÃÎé¶â¡§- | |
| Êݾڶ⡧-¡Ã²òÌó°ú¡§- | |
| ÄÚ¡¡¿ô | 23.1ÄÚ¡¡·úʪÌÌÀÑ¡§76.28m2 |
| È÷¹Í | ¡Ý |
|---|
| ½êºßÃÏ | Âçºå»Ô½»Ç·¹¾¶è ¿·ËÌÅç7 google¥Þ¥Ã¥×¤Ç¤ß¤ë |
|---|---|
| ¸òÄÌ | Âçºå¥á¥È¥íÆî¹Á¥Ý¡¼¥È¥¿¥¦¥óÀþ ¡ÖÊ¿ÎÓ±Ø¡×±Ø ¡Ý ¡Ý |
| ʪ·ï¹½Â¤ | Å´¹ü | ʪ·ï³¬ÁØ | 1³¬·ú |
|---|---|---|---|
| ʪ·ï¼ïÊÌ | ÁÒ¸Ë | ´°À®Ç¯·î | ¡Ý |
| ÍÑÅÓÃϰè | ¡Ý | ||
| ʪ·ïÀßÈ÷ | ¥·¥ã¥¿¡¼¥È¥¤¥ìÅŵ¤¾å¿åÆ»¸ø¶¦²¼¿å ¡Ý | ||
| ʪ·ïÈÖ¹æ | US1-05519 |
|---|---|
| ¥µ¥¤¥È̾ | Âçºå¤ÎÂßÁҸˡ¦Âß¹©¾ì¡¦ÇäÇã |
072-737-6699
½êºßÃÏ¡§ÂçºåÉÜ̧ÌÌ»Ô̧ÌÌ1-9-21
¥¢¥¯¥»¥¹¡§ºåµÞ̧Ì̱ؤè¤êÅì¤ØÅÌÊâ2ʬ¡ª±ØÁ°¥í¡¼¥¿¥ê¡¼¤è¤ê¥¹¥°ÌܤÎÁ°¡ª
06-6657-7090
½êºßÃÏ¡§ÂçºåÉÜÂçºå»Ô½»Ç·¹¾¶èÆî²Ã²ì²°2-8-25¥»¥¸¥å¡¼¥ë24 1³¬
¥¢¥¯¥»¥¹¡§Âçºå¥á¥È¥í½»Ç·¹¾¸ø±à±Ø4Èֽиý¿·¤Ê¤Ë¤ï¶Ú¤òÅϤäƥ¹¥°
»÷¤¿Êª·ï¤òõ¤·¤¿¤¤¡¢ºÇ¿·¤Îʪ·ï¾ðÊó¤òÃΤꤿ¤¤¡¢´õ˾¤Îʪ·ï¾ò·ï¤Ç¸«¤Ä¤±¤ÆÍߤ·¤¤¡¢¤Ê¤É¤ªµ¤·Ú¤Ë¤ªÌ䤤¹ç¤ï¤»²¼¤µ¤¤¡£