ÅìÂçºå»ÔÆïº¬2¤ÎÄÂÂß
ÅìÂçºå»ÔÆïº¬2¤ÎÂߤ·ÁÒ¸Ëʪ·ï ¾ÜºÙ
¤³¤Îʪ·ï¾ðÊó¤Ï¡Ú¡Û¤ËºîÀ®¤µ¤ì¤¿¤â¤Î¤Ç¤¹¡£













¹â®ƻϩ¡ÚÅìÂçºåJCT¡Û¶á¤¯
ÅìÂçºå»ÔÆïº¬2ÃúÌÜ
Á°ÌÌÆ»Ï©Éý¡¢ÉßÃϤ⹤¯Âç·¿¼Öξ¿ÊÆþ²Äǽ¤ÊÁҸˤ¬¶õ¤¤Þ¤¹¡ª
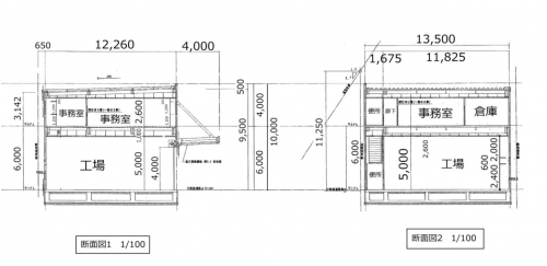
2³¬·ú¤Æ¡¡±ä¤ÙÌó331.02Ö¡ÊÌó100.13ÄÚ¡Ë
³Æ³¬-Ìó165.51Ö¡ÊÌó50.07ÄÚ¡Ë
1³¬Å·°æ¹â¤Ï5m°Ê¾å¡ª
ÉßÃϤ⹤¯Âç·¿¼Öξ¤¡Ç½¤Êµ©¾¯Êª·ï¤Ç¤¹¡£
³Æ¼ïÁҸˡ¦¹©¾ì¡¢±Ä¶È½êÅù¤Ë¡¢
ÍÑÅÓ¡¦¶È¼ï¤Ï¤´ÁêÃ̲¼¤µ¤¤¡£
| À®Ìó¾õ¶· | |
|---|---|
| Ä¡¡ÎÁ | - |
| ´ÉÍýÈñ¡§-¶¦±×Èñ¡§- | |
| Éß¶â¡§-¡ÃÎé¶â¡§- | |
| Êݾڶ⡧-¡Ã²òÌó°ú¡§- | |
| ÄÚ¡¡¿ô | 100.13ÄÚ¡¡·úʪÌÌÀÑ¡§331.02m2 |
| È÷¹Í | ¡Ý |
|---|
| ½êºßÃÏ | ÅìÂçºå»Ô Æïº¬2 google¥Þ¥Ã¥×¤Ç¤ß¤ë |
|---|---|
| ¸òÄÌ | Âçºå¥á¥È¥íÃæ±ûÀþ ¡ÖĹÅıءױØÅÌÊâ 16ʬ |
| ʪ·ï¹½Â¤ | Å´¹ü | ʪ·ï³¬ÁØ | 2³¬·ú |
|---|---|---|---|
| ʪ·ï¼ïÊÌ | ÁÒ¸Ë/¹©¾ì | ´°À®Ç¯·î | ¡Ý |
| ÍÑÅÓÃϰè | ½à¹©¶ÈÃϰè | ||
| ʪ·ïÀßÈ÷ | ¥·¥ã¥¿¡¼ÅÅÆ°¥·¥ã¥Ã¥¿¡¼¥È¥¤¥ìÃó¼Ö¾ìÅŵ¤¾å¿åÆ»¸ø¶¦²¼¿å ¡Ý | ||
| ʪ·ïÈÖ¹æ | US1-05511 |
|---|---|
| ¥µ¥¤¥È̾ | Âçºå¤ÎÂßÁҸˡ¦Âß¹©¾ì¡¦ÇäÇã |
072-737-6699
½êºßÃÏ¡§ÂçºåÉÜ̧ÌÌ»Ô̧ÌÌ1-9-21
¥¢¥¯¥»¥¹¡§ºåµÞ̧Ì̱ؤè¤êÅì¤ØÅÌÊâ2ʬ¡ª±ØÁ°¥í¡¼¥¿¥ê¡¼¤è¤ê¥¹¥°ÌܤÎÁ°¡ª
06-6657-7090
½êºßÃÏ¡§ÂçºåÉÜÂçºå»Ô½»Ç·¹¾¶èÆî²Ã²ì²°2-8-25¥»¥¸¥å¡¼¥ë24 1³¬
¥¢¥¯¥»¥¹¡§Âçºå¥á¥È¥í½»Ç·¹¾¸ø±à±Ø4Èֽиý¿·¤Ê¤Ë¤ï¶Ú¤òÅϤäƥ¹¥°
»÷¤¿Êª·ï¤òõ¤·¤¿¤¤¡¢ºÇ¿·¤Îʪ·ï¾ðÊó¤òÃΤꤿ¤¤¡¢´õ˾¤Îʪ·ï¾ò·ï¤Ç¸«¤Ä¤±¤ÆÍߤ·¤¤¡¢¤Ê¤É¤ªµ¤·Ú¤Ë¤ªÌ䤤¹ç¤ï¤»²¼¤µ¤¤¡£