Âçºå»ÔÂçÀµ¶èÆî²¸²ÃÅç5¤ÎÄÂÂß
Âçºå»ÔÂçÀµ¶èÆî²¸²ÃÅç5¤ÎÂߤ·ÁÒ¸Ëʪ·ï ¾ÜºÙ
¤³¤Îʪ·ï¾ðÊó¤Ï¡Ú¡Û¤ËºîÀ®¤µ¤ì¤¿¤â¤Î¤Ç¤¹¡£













Âçºå»ÔÂçÀµ¶èÆî²¸²ÃÅç5ÃúÌÜ
ÂçÀµÄÌ¥ê¤ËÌ̤¹¤ë¡¢ÁҸ˻ö̳½ê¤ÎÊ罸¾ðÊó¤Ç¤¹¡£
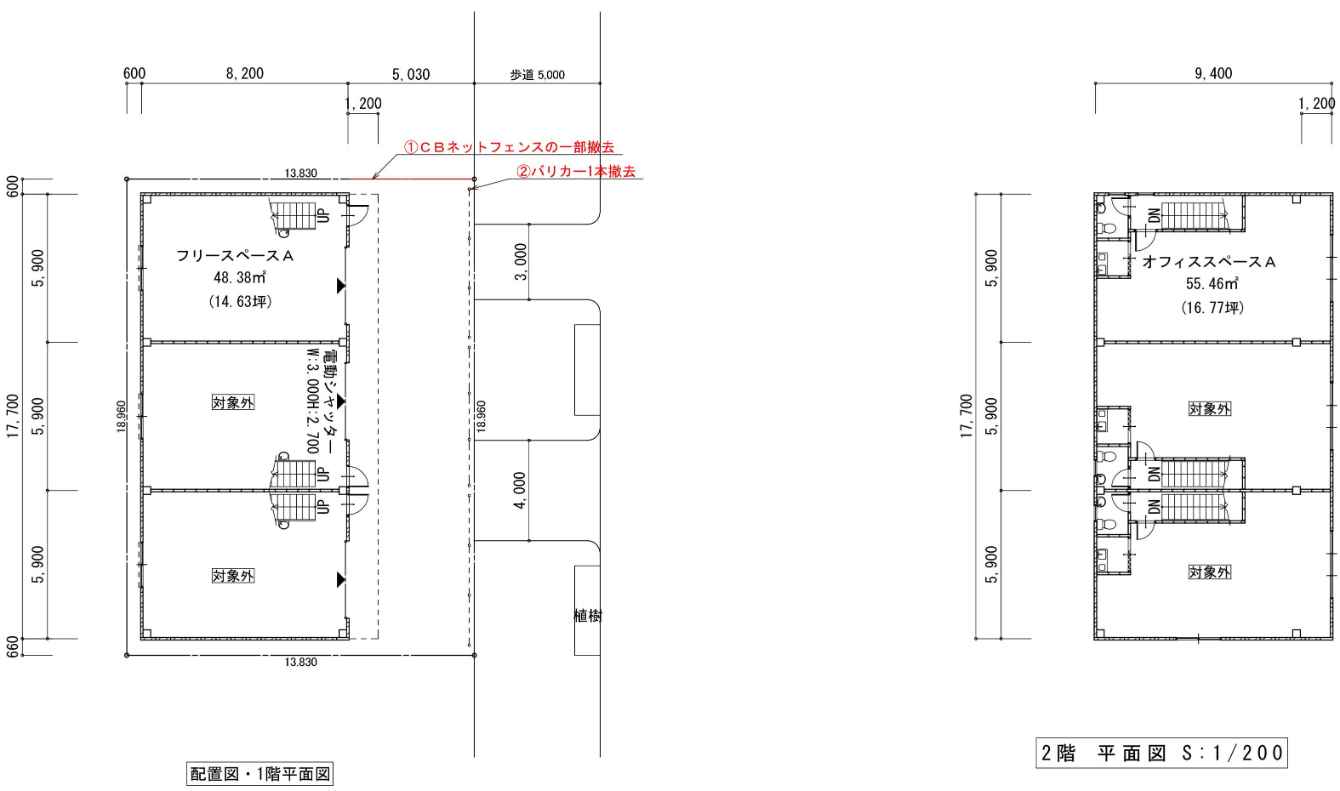
1³¬-ÁҸˡ¦¥Õ¥ê¡¼¥¹¥Ú¡¼¥¹¡¡48.38Ö¡Ê14.63ÄÚ¡Ë
2³¬-»ö̳½ê¡¡55.46Ö¡Ê16.77ÄÚ¡Ë
±ä¤Ù¡¡103.84Ö¡Ê31.41ÄÚ¡Ë
ÉßÃÏÆâ·úʪÁ°¤ËÃó¼Ö¥¹¥Ú¡¼¥¹ÉÕ¤¤Î¥³¥ó¥Ñ¥¯¥ÈÁҸ˻ö̳½ê¤Ç¤¹¡ª
2006ǯÃÛ¡¢¤Þ¤À¤Þ¤ÀåºÎï¤Ê·úʪ¤Ç¤¹¡ª¡ª
³Æ¼ï±Ä¶ÈµòÅÀ¤Ë¤É¤¦¤¾¡ª¡ª
| À®Ìó¾õ¶· | |
|---|---|
| Ä¡¡ÎÁ | - |
| ´ÉÍýÈñ¡§-¶¦±×Èñ¡§- | |
| Éß¶â¡§-¡ÃÎé¶â¡§- | |
| Êݾڶ⡧-¡Ã²òÌó°ú¡§- | |
| ÄÚ¡¡¿ô | 31.41ÄÚ¡¡·úʪÌÌÀÑ¡§103.84m2 |
| È÷¹Í | ¡Ý |
|---|
| ½êºßÃÏ | Âçºå»ÔÂçÀµ¶è Æî²¸²ÃÅç5 google¥Þ¥Ã¥×¤Ç¤ß¤ë |
|---|---|
| ¸òÄÌ | JRÂçºå´Ä¾õÀþ ¡ÖÂçÀµ±Ø¡×±Ø ¡Ý ¡Ý |
| ʪ·ï¹½Â¤ | Å´¹üALC | ʪ·ï³¬ÁØ | 2³¬·ú |
|---|---|---|---|
| ʪ·ï¼ïÊÌ | ÁÒ¸Ë | ´°À®Ç¯·î | 2006ǯ5·î |
| ÍÑÅÓÃϰè | ¡Ý | ||
| ʪ·ïÀßÈ÷ | ¥·¥ã¥¿¡¼¥È¥¤¥ìÃó¼Ö¾ì¾å¿åÆ»¸ø¶¦²¼¿å ¡Ý | ||
| ʪ·ïÈÖ¹æ | US1-05503 |
|---|---|
| ¥µ¥¤¥È̾ | Âçºå¤ÎÂßÁҸˡ¦Âß¹©¾ì¡¦ÇäÇã |
072-737-6699
½êºßÃÏ¡§ÂçºåÉÜ̧ÌÌ»Ô̧ÌÌ1-9-21
¥¢¥¯¥»¥¹¡§ºåµÞ̧Ì̱ؤè¤êÅì¤ØÅÌÊâ2ʬ¡ª±ØÁ°¥í¡¼¥¿¥ê¡¼¤è¤ê¥¹¥°ÌܤÎÁ°¡ª
06-6657-7090
½êºßÃÏ¡§ÂçºåÉÜÂçºå»Ô½»Ç·¹¾¶èÆî²Ã²ì²°2-8-25¥»¥¸¥å¡¼¥ë24 1³¬
¥¢¥¯¥»¥¹¡§Âçºå¥á¥È¥í½»Ç·¹¾¸ø±à±Ø4Èֽиý¿·¤Ê¤Ë¤ï¶Ú¤òÅϤäƥ¹¥°
»÷¤¿Êª·ï¤òõ¤·¤¿¤¤¡¢ºÇ¿·¤Îʪ·ï¾ðÊó¤òÃΤꤿ¤¤¡¢´õ˾¤Îʪ·ï¾ò·ï¤Ç¸«¤Ä¤±¤ÆÍߤ·¤¤¡¢¤Ê¤É¤ªµ¤·Ú¤Ë¤ªÌ䤤¹ç¤ï¤»²¼¤µ¤¤¡£