Âçºå»ÔÍäÀî¶è¿·¹â2¤ÎÄÂÂß
Âçºå»ÔÍäÀî¶è¿·¹â2¤ÎÂߤ·ÁÒ¸Ëʪ·ï ¾ÜºÙ
¤³¤Îʪ·ï¾ðÊó¤Ï¡Ú¡Û¤ËºîÀ®¤µ¤ì¤¿¤â¤Î¤Ç¤¹¡£













ÁҸˡ¦»ö̳½ê¡¦·Úºî¶È¾ì¤ËºÇŬ¤Ê3³¬·ú¤ÆÁҸ˻ö̳½ê¤Î¤´°ÆÆâ¤Ç¤¹¡£
ºåµÞ¿À¸ÍÀþ¡Ú¿ÀºêÀî±Ø¡ÛÅÌÊâ7ʬ
ºåµÞÊõÄÍÀþ¡Ú»°¹ñ±Ø¡ÛÅÌÊâ12ʬ
½êºßÃϤÏÂçºå»ÔÍäÀî¶è¿·¹â2ÃúÌܤˤʤê¤Þ¤¹¡£
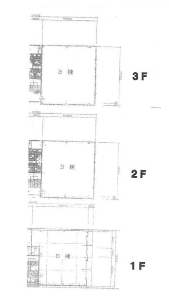
3³¬·ú¤Æ¡¡±ä¤ÙÌó429Ö¡ÊÌó130ÄÚ¡Ë
1³¬Æþ¸ýÅÅÆ°¥·¥ã¥Ã¥¿¡¼¡¢¥ê¥Õ¥È¡¢¥¨¥¢¥³¥ó¤¬»ÄÃÖʪ¤Ç
ÀßÃÖ¤µ¤ì¤Æ¤¤¤Þ¤¹¤Î¤Ç¤½¤Î¤Þ¤Þ»ÈÍѲÄǽ¤Ç¤¹¡£
ÉßÃÏÆâÃó¼Ö¥¹¥Ú¡¼¥¹¡Ê5¡Á7Âæ¡Ë
ÂçºåËÌ¥¨¥ê¥¢¤Î±Ä¶ÈµòÅÀ¤Ë¡¢
ÁҸ˻ö̳½ê¡¦ºî¶È¾ì¤Ë¤É¤¦¤¾¡ª¡ª
| À®Ìó¾õ¶· | |
|---|---|
| Ä¡¡ÎÁ | - |
| ´ÉÍýÈñ¡§-¶¦±×Èñ¡§- | |
| Éß¶â¡§-¡ÃÎé¶â¡§- | |
| Êݾڶ⡧-¡Ã²òÌó°ú¡§- | |
| ÄÚ¡¡¿ô | 130ÄÚ¡¡·úʪÌÌÀÑ¡§429m2 |
| È÷¹Í | ¡Ý |
|---|
| ½êºßÃÏ | Âçºå»ÔÍäÀî¶è ¿·¹â2 google¥Þ¥Ã¥×¤Ç¤ß¤ë |
|---|---|
| ¸òÄÌ | ºåµÞÊõÄÍÀþ ¡Ö»°¹ñ±Ø¡×±ØÅÌÊâ 12ʬ |
| ʪ·ï¹½Â¤ | Å´¹ü | ʪ·ï³¬ÁØ | 3³¬·ú |
|---|---|---|---|
| ʪ·ï¼ïÊÌ | ÁÒ¸Ë | ´°À®Ç¯·î | 1993ǯ3·î |
| ÍÑÅÓÃϰè | Âè1¼ï½»µïÃϰè | ||
| ʪ·ïÀßÈ÷ | ¥·¥ã¥¿¡¼ÅÅÆ°¥·¥ã¥Ã¥¿¡¼¥È¥¤¥ìÃó¼Ö¾ì¥ê¥Õ¥ÈÅŵ¤¾å¿åÆ»¸ø¶¦²¼¿åưÎÏÅŵ¤ ¡Ý | ||
| ʪ·ïÈÖ¹æ | US1-05483 |
|---|---|
| ¥µ¥¤¥È̾ | Âçºå¤ÎÂßÁҸˡ¦Âß¹©¾ì¡¦ÇäÇã |
06-6657-7090
½êºßÃÏ¡§ÂçºåÉÜÂçºå»Ô½»Ç·¹¾¶èÆî²Ã²ì²°2-8-25¥»¥¸¥å¡¼¥ë24 1³¬
¥¢¥¯¥»¥¹¡§Âçºå¥á¥È¥í½»Ç·¹¾¸ø±à±Ø4Èֽиý¿·¤Ê¤Ë¤ï¶Ú¤òÅϤäƥ¹¥°
»÷¤¿Êª·ï¤òõ¤·¤¿¤¤¡¢ºÇ¿·¤Îʪ·ï¾ðÊó¤òÃΤꤿ¤¤¡¢´õ˾¤Îʪ·ï¾ò·ï¤Ç¸«¤Ä¤±¤ÆÍߤ·¤¤¡¢¤Ê¤É¤ªµ¤·Ú¤Ë¤ªÌ䤤¹ç¤ï¤»²¼¤µ¤¤¡£