ºæ»ÔÀ¾¶è¸¶ÅĤÎÄÂÂß
ºæ»ÔÀ¾¶è¸¶ÅĤÎÂߤ·ÁÒ¸Ëʪ·ï ¾ÜºÙ
¤³¤Îʪ·ï¾ðÊó¤Ï¡Ú¡Û¤ËºîÀ®¤µ¤ì¤¿¤â¤Î¤Ç¤¹¡£













JRºåÏÂÀþ¡ÚÉÙÌڱءÛÅÌÊâ·÷Æâ¡£
ÂçºåÉܺæ»ÔÀ¾¶è¸¶ÅÄ
2021ǯ1·îÃÛ¡¢
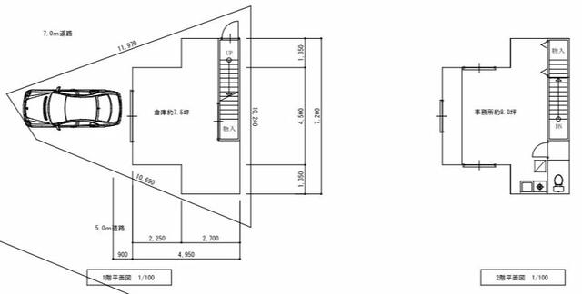
¿·ÃÛ¡¢Ãó¼Ö¥¹¥Ú¡¼¥¹ÉÕ¤ÁҸ˻ö̳½ê¤¬Êç½¸Ãæ¤Ç¤¹¡ª
³°´Ñ¤Ï¹õ´ðÄ´¤Î¥«¥Ã¥³¥¤¥¤´¶¤¸¡¢
¥Ç¥¶¥¤¥ó»ö̳½ê¡¦·úÃÛ»ö̳½ê¤Ë¥Ô¥Ã¥¿¥ê¤Ê·úʪ¤Ç¤¹¡£
2³¬·ú¤Æ¡¢±ä¤Ù63.18Ö¡ÊÌó19ÄÚ¡Ë
¤ªÌä¹ç¤»¤ªÂÔ¤Á¤·¤Æ¤ª¤ê¤Þ¤¹¡£
| À®Ìó¾õ¶· | |
|---|---|
| Ä¡¡ÎÁ | - |
| ´ÉÍýÈñ¡§-¶¦±×Èñ¡§- | |
| Éß¶â¡§-¡ÃÎé¶â¡§- | |
| Êݾڶ⡧-¡Ã²òÌó°ú¡§- | |
| ÄÚ¡¡¿ô | 19.14ÄÚ¡¡·úʪÌÌÀÑ¡§63.18m2 |
| È÷¹Í | ¡Ý |
|---|
| ½êºßÃÏ | ºæ»ÔÀ¾¶è ¸¶ÅÄ google¥Þ¥Ã¥×¤Ç¤ß¤ë |
|---|---|
| ¸òÄÌ | JRºåÏÂÀþ ¡ÖÉÙÌڱءױØÅÌÊâ 15ʬ |
| ʪ·ï¹½Â¤ | ÌÚ¤ | ʪ·ï³¬ÁØ | 2³¬·ú |
|---|---|---|---|
| ʪ·ï¼ïÊÌ | ÁÒ¸Ë | ´°À®Ç¯·î | 2021ǯ1·î |
| ÍÑÅÓÃϰè | Âè1¼ï½»µïÃϰè | ||
| ʪ·ïÀßÈ÷ | ¥·¥ã¥¿¡¼¥¨¥¢¥³¥ó¥È¥¤¥ì¾ÈÌÀÃó¼Ö¾ìÅŵ¤¾å¿åÆ»¸ø¶¦²¼¿å ¡Ý | ||
| ʪ·ïÈÖ¹æ | US1-05438 |
|---|---|
| ¥µ¥¤¥È̾ | Âçºå¤ÎÂßÁҸˡ¦Âß¹©¾ì¡¦ÇäÇã |
072-737-6699
½êºßÃÏ¡§ÂçºåÉÜ̧ÌÌ»Ô̧ÌÌ1-9-21
¥¢¥¯¥»¥¹¡§ºåµÞ̧Ì̱ؤè¤êÅì¤ØÅÌÊâ2ʬ¡ª±ØÁ°¥í¡¼¥¿¥ê¡¼¤è¤ê¥¹¥°ÌܤÎÁ°¡ª
06-6657-7090
½êºßÃÏ¡§ÂçºåÉÜÂçºå»Ô½»Ç·¹¾¶èÆî²Ã²ì²°2-8-25¥»¥¸¥å¡¼¥ë24 1³¬
¥¢¥¯¥»¥¹¡§Âçºå¥á¥È¥í½»Ç·¹¾¸ø±à±Ø4Èֽиý¿·¤Ê¤Ë¤ï¶Ú¤òÅϤäƥ¹¥°
»÷¤¿Êª·ï¤òõ¤·¤¿¤¤¡¢ºÇ¿·¤Îʪ·ï¾ðÊó¤òÃΤꤿ¤¤¡¢´õ˾¤Îʪ·ï¾ò·ï¤Ç¸«¤Ä¤±¤ÆÍߤ·¤¤¡¢¤Ê¤É¤ªµ¤·Ú¤Ë¤ªÌ䤤¹ç¤ï¤»²¼¤µ¤¤¡£