¿áÅÄ»ÔËÄÅÄ®¤ÎÄÂÂß
¿áÅÄ»ÔËÄÅÄ®¤ÎÂߤ·ÁÒ¸Ëʪ·ï ¾ÜºÙ
¤³¤Îʪ·ï¾ðÊó¤Ï¡Ú¡Û¤ËºîÀ®¤µ¤ì¤¿¤â¤Î¤Ç¤¹¡£













ËÌÀÝ¥¨¥ê¥¢¡¢¿áÅÄ»ÔËÄÅÄ®
¡Ú¹¾ºä±Ø¡ÛÅÌÊâ·÷Æâ¤ÎÂç·¿ÁҸ˻ö̳½ê¤Ë¶õ¤¤¬½Ð¤Þ¤·¤¿¡£
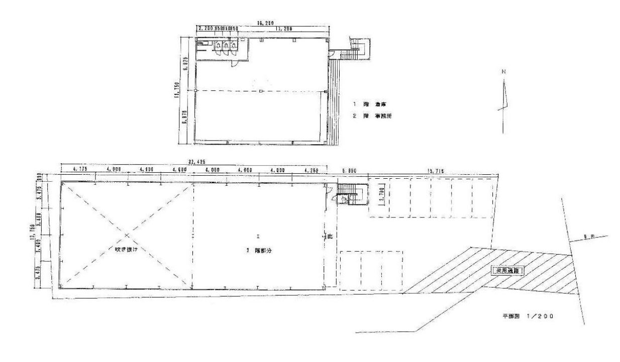
ÉßÃÏÌÌÀÑ¡¡867.42Ö¡Ê262.39ÄÚ¡Ë
·úʪÌÌÀÑ¡¡±ä¤Ù680.50Ö¡Ê205.85ÄÚ¡Ë
1³¬¡¢ÁÒ¸Ë-459.50Ö¡Ê138.99ÄÚ¡Ë
2³¬¡¢»ö̳½ê-221.00Ö¡Ê66.85ÄÚ¡Ë
·úʪÁ°ÌÌÃó¼Ö¥¹¥Ú¡¼¥¹Í¤ê
Á°ÌÌÆ»Ï©Éý6£íͤê¤Þ¤¹¤Î¤ÇÂç·¿¼Ö¤Î¿ÊÆþ¤â²Äǽ¤Ç¤¹¡ª
ʪήÁҸˡ¢ÊªÉÊÊݴɱĶÈÁҸˤˤ´ÍøÍѤ¯¤À¤µ¤¤¡£
| À®Ìó¾õ¶· | |
|---|---|
| Ä¡¡ÎÁ | - |
| ´ÉÍýÈñ¡§-¶¦±×Èñ¡§- | |
| Éß¶â¡§-¡ÃÎé¶â¡§- | |
| Êݾڶ⡧-¡Ã²òÌó°ú¡§- | |
| ÄÚ¡¡¿ô | 205.85ÄÚ¡¡·úʪÌÌÀÑ¡§680.5m2 |
| È÷¹Í | ¡Ý |
|---|
| ½êºßÃÏ | ¿áÅÄ»Ô ËÄÅÄ® google¥Þ¥Ã¥×¤Ç¤ß¤ë |
|---|---|
| ¸òÄÌ | Âçºå¥á¥È¥í¸æÆ²¶ÚÀþ ¡Ö¹¾ºä±Ø¡×±ØÅÌÊâ 8ʬ |
| ʪ·ï¹½Â¤ | Å´¹ü | ʪ·ï³¬ÁØ | 2³¬·ú |
|---|---|---|---|
| ʪ·ï¼ïÊÌ | ÁÒ¸Ë | ´°À®Ç¯·î | 1981ǯ4·î |
| ÍÑÅÓÃϰè | Âè2¼ïÃæ¹âÁؽ»µïÀìÍÑÃϰè | ||
| ʪ·ïÀßÈ÷ | ¥·¥ã¥¿¡¼¥È¥¤¥ìÃó¼Ö¾ìÅŵ¤¾å¿åÆ»¸ø¶¦²¼¿å ¡Ý | ||
| ʪ·ïÈÖ¹æ | US1-05428 |
|---|---|
| ¥µ¥¤¥È̾ | Âçºå¤ÎÂßÁҸˡ¦Âß¹©¾ì¡¦ÇäÇã |
072-737-6699
½êºßÃÏ¡§ÂçºåÉÜ̧ÌÌ»Ô̧ÌÌ1-9-21
¥¢¥¯¥»¥¹¡§ºåµÞ̧Ì̱ؤè¤êÅì¤ØÅÌÊâ2ʬ¡ª±ØÁ°¥í¡¼¥¿¥ê¡¼¤è¤ê¥¹¥°ÌܤÎÁ°¡ª
06-6657-7090
½êºßÃÏ¡§ÂçºåÉÜÂçºå»Ô½»Ç·¹¾¶èÆî²Ã²ì²°2-8-25¥»¥¸¥å¡¼¥ë24 1³¬
¥¢¥¯¥»¥¹¡§Âçºå¥á¥È¥í½»Ç·¹¾¸ø±à±Ø4Èֽиý¿·¤Ê¤Ë¤ï¶Ú¤òÅϤäƥ¹¥°
»÷¤¿Êª·ï¤òõ¤·¤¿¤¤¡¢ºÇ¿·¤Îʪ·ï¾ðÊó¤òÃΤꤿ¤¤¡¢´õ˾¤Îʪ·ï¾ò·ï¤Ç¸«¤Ä¤±¤ÆÍߤ·¤¤¡¢¤Ê¤É¤ªµ¤·Ú¤Ë¤ªÌ䤤¹ç¤ï¤»²¼¤µ¤¤¡£