Âçºå»ÔÀ¾ÍäÀî¶èɱÅç6¤ÎÄÂÂß
Âçºå»ÔÀ¾ÍäÀî¶èɱÅç6¤ÎÂߤ·ÁÒ¸Ëʪ·ï ¾ÜºÙ
¤³¤Îʪ·ï¾ðÊó¤Ï¡Ú¡Û¤ËºîÀ®¤µ¤ì¤¿¤â¤Î¤Ç¤¹¡£













ÉßÃÏÌÌÀÑ¡¡317.25Ö¡ÊÌó96ÄÚ¡Ë¡ª
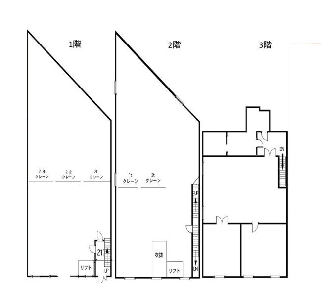
À¾ÍäÀî¶èɱÅç6ÃúÌܤÎ3³¬·ú¤Æ¡¢¹©¾ì¡¦ÁҸ˻ö̳½ê¤Ë¶õ¤¤¬½Ð¤Þ¤¹¡£
3³¬·ú¤Æ¡¡±ä¤ÙÌó714.18Ö¡ÊÌó216.4ÄÚ¡Ë
1³¬-263.47Ö¡ÊÌó79ÄÚ¡Ë
2³¬-254.77Ö¡ÊÌó77ÄÚ¡Ë
1-2³¬Éôʬ¤Ï¹©¾ìÁҸ˻ÅÍͤˤʤê¤Þ¤¹¡¢
1³¬¤Ë2.8£ô¥¯¥ì¡¼¥ó2´ð¡¢2£ô¥¯¥ì¡¼¥ó1´ð
2³¬¤Ë2£ô¥¯¥ì¡¼¥ó1´ð¡¢1¥È¥ó¥¯¥ì¡¼¥ó1´ð
1-2³¬¤Ø¤Î¥ê¥Õ¥È
¾åµ¤¬»ÄÃÖʪ¤È¤·¤ÆÀßÃֺѤߡ£
¢¨¾õÂ֤ˤĤ¤¤Æ¤ÏÆâÍ÷»þ¤´³Îǧ¤ª´ê¤¤Ãפ·¤Þ¤¹¡£
3³¬-195.94Ö¡ÊÌó59ÄÚ¡Ë
3³¬Éôʬ¤Ï»ö̳½ê¡¦µÙ·Æ¼¼¡¦¹¹°á¼¼¤Î»ÅÍÍ¡£
¸½¾õ»ÈÍÑÃæ¤Î°Ù¡¢ÆâÍ÷»þ¤Ï»öÁ°Ï¢Íí¤¬É¬Íפˤʤê¤Þ¤¹¡£
¤ªÌä¹ç¤»¤ªÂÔ¤Á¤·¤Æ¤ª¤ê¤Þ¤¹¡£
| À®Ìó¾õ¶· | |
|---|---|
| Ä¡¡ÎÁ | - |
| ´ÉÍýÈñ¡§-¶¦±×Èñ¡§- | |
| Éß¶â¡§-¡ÃÎé¶â¡§- | |
| Êݾڶ⡧-¡Ã²òÌó°ú¡§- | |
| ÄÚ¡¡¿ô | 216.4ÄÚ¡¡·úʪÌÌÀÑ¡§714.18m2 |
| È÷¹Í | ¡Ý |
|---|
| ½êºßÃÏ | Âçºå»ÔÀ¾ÍäÀî¶è ɱÅç6 google¥Þ¥Ã¥×¤Ç¤ß¤ë |
|---|---|
| ¸òÄÌ | ºå¿À¤Ê¤ó¤ÐÀþ ¡ÖÊ¡±Ø¡×±ØÅÌÊâ 5ʬ |
| ʪ·ï¹½Â¤ | Å´¹ü | ʪ·ï³¬ÁØ | 3³¬·ú |
|---|---|---|---|
| ʪ·ï¼ïÊÌ | ¹©¾ì | ´°À®Ç¯·î | 1973ǯ1·î |
| ÍÑÅÓÃϰè | ¹©¶ÈÃϰè | ||
| ʪ·ïÀßÈ÷ | ¥·¥ã¥¿¡¼¥È¥¤¥ì¾ÈÌÀ¥ê¥Õ¥ÈÅŵ¤¾å¿åÆ»¸ø¶¦²¼¿åưÎÏÅŵ¤ ¡Ý | ||
| ʪ·ïÈÖ¹æ | US1-05389 |
|---|---|
| ¥µ¥¤¥È̾ | Âçºå¤ÎÂßÁҸˡ¦Âß¹©¾ì¡¦ÇäÇã |
06-6657-7090
½êºßÃÏ¡§ÂçºåÉÜÂçºå»Ô½»Ç·¹¾¶èÆî²Ã²ì²°2-8-25¥»¥¸¥å¡¼¥ë24 1³¬
¥¢¥¯¥»¥¹¡§Âçºå¥á¥È¥í½»Ç·¹¾¸ø±à±Ø4Èֽиý¿·¤Ê¤Ë¤ï¶Ú¤òÅϤäƥ¹¥°
»÷¤¿Êª·ï¤òõ¤·¤¿¤¤¡¢ºÇ¿·¤Îʪ·ï¾ðÊó¤òÃΤꤿ¤¤¡¢´õ˾¤Îʪ·ï¾ò·ï¤Ç¸«¤Ä¤±¤ÆÍߤ·¤¤¡¢¤Ê¤É¤ªµ¤·Ú¤Ë¤ªÌ䤤¹ç¤ï¤»²¼¤µ¤¤¡£