Âçºå»ÔÀ¾ÍäÀî¶èÄÑ6¤ÎÄÂÂß
Âçºå»ÔÀ¾ÍäÀî¶èÄÑ6¤ÎÂߤ·ÁÒ¸Ëʪ·ï ¾ÜºÙ
¤³¤Îʪ·ï¾ðÊó¤Ï¡Ú¡Û¤ËºîÀ®¤µ¤ì¤¿¤â¤Î¤Ç¤¹¡£













Âçºå»ÔÆâ¥Ù¥¤¥¨¥ê¥¢¡¢À¾ÍäÀî¶èÄÑ6ÃúÌÜ
2020ǯ10·îÃÛ
¿·ÃÛ¡¢ÁҸ˻ö̳½ê¤Ë¶õ¼¼¤¬Í¤ê¤Þ¤¹¡ª
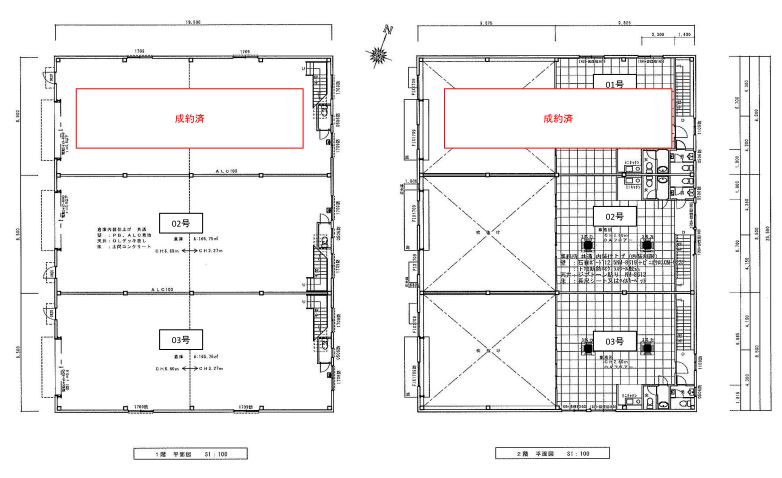
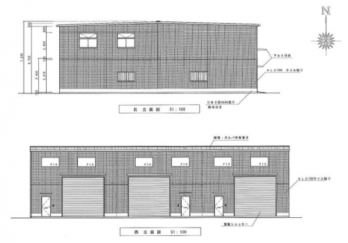
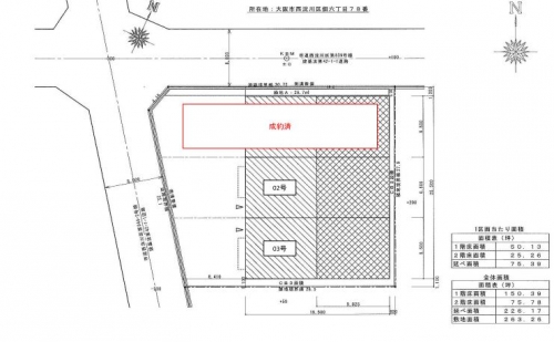
1³¬ÁÒ¸ËÉôʬ¡¡165.72Ö¡Ê50.13ÄÚ¡Ë
2³¬»ö̳½ê¡¡83.51Ö¡Ê25.26ÄÚ¡Ë
ÉßÃÏÆâ¤ËÌó21ÄÚ¤ÎÃó¼Ö¥¹¥Ú¡¼¥¹ÉÕ¤¡ª
1³¬ÁÒ¸ËÉôʬ¤ÏÅ·°æ¹â3.27£í¡Á6.6£í
ÅÅÆ°¥·¥ã¥Ã¥¿¡¼¡¢³Æ³¬¥È¥¤¥ì¡¢¥ß¥Ë¥¥Ã¥Á¥ó¡¢»ö̳½êOA¥Õ¥í¥¢
ÀÜÆ»Éý°÷8£í¤¢¤ë¤Î¤ÇÂç·¿¼Öξ¤Î¿ÊÆþ¤â²Äǽ¤Ç¤¹¡ª¡ª¡¡
| À®Ìó¾õ¶· | |
|---|---|
| Ä¡¡ÎÁ | - |
| ´ÉÍýÈñ¡§-¶¦±×Èñ¡§- | |
| Éß¶â¡§-¡ÃÎé¶â¡§- | |
| Êݾڶ⡧-¡Ã²òÌó°ú¡§- | |
| ÄÚ¡¡¿ô | 75.39ÄÚ¡¡·úʪÌÌÀÑ¡§249.23m2 |
| È÷¹Í | ¡Ý |
|---|
| ½êºßÃÏ | Âçºå»ÔÀ¾ÍäÀî¶è ÄÑ6 google¥Þ¥Ã¥×¤Ç¤ß¤ë |
|---|---|
| ¸òÄÌ | ºå¿À¤Ê¤ó¤ÐÀþ ¡Ö½ÐÍèÅç±Ø¡×±ØÅÌÊâ 14ʬ |
| ʪ·ï¹½Â¤ | Å´¹ü | ʪ·ï³¬ÁØ | 2³¬·ú |
|---|---|---|---|
| ʪ·ï¼ïÊÌ | ÁÒ¸Ë | ´°À®Ç¯·î | 2020ǯ10·î |
| ÍÑÅÓÃϰè | ¹©¶ÈÃϰè | ||
| ʪ·ïÀßÈ÷ | ¥·¥ã¥¿¡¼ÅÅÆ°¥·¥ã¥Ã¥¿¡¼¥È¥¤¥ì¾ÈÌÀÃó¼Ö¾ì¾å¿åÆ»¸ø¶¦²¼¿å ¡Ý | ||
| ʪ·ïÈÖ¹æ | US1-05365 |
|---|---|
| ¥µ¥¤¥È̾ | Âçºå¤ÎÂßÁҸˡ¦Âß¹©¾ì¡¦ÇäÇã |
072-737-6699
½êºßÃÏ¡§ÂçºåÉÜ̧ÌÌ»Ô̧ÌÌ1-9-21
¥¢¥¯¥»¥¹¡§ºåµÞ̧Ì̱ؤè¤êÅì¤ØÅÌÊâ2ʬ¡ª±ØÁ°¥í¡¼¥¿¥ê¡¼¤è¤ê¥¹¥°ÌܤÎÁ°¡ª
06-6657-7090
½êºßÃÏ¡§ÂçºåÉÜÂçºå»Ô½»Ç·¹¾¶èÆî²Ã²ì²°2-8-25¥»¥¸¥å¡¼¥ë24 1³¬
¥¢¥¯¥»¥¹¡§Âçºå¥á¥È¥í½»Ç·¹¾¸ø±à±Ø4Èֽиý¿·¤Ê¤Ë¤ï¶Ú¤òÅϤäƥ¹¥°
»÷¤¿Êª·ï¤òõ¤·¤¿¤¤¡¢ºÇ¿·¤Îʪ·ï¾ðÊó¤òÃΤꤿ¤¤¡¢´õ˾¤Îʪ·ï¾ò·ï¤Ç¸«¤Ä¤±¤ÆÍߤ·¤¤¡¢¤Ê¤É¤ªµ¤·Ú¤Ë¤ªÌ䤤¹ç¤ï¤»²¼¤µ¤¤¡£