大阪市西区立売堀1の賃貸
大阪市西区立売堀1の貸し倉庫物件 詳細
この物件情報は【】に作成されたものです。













大阪メトロ四つ橋線【本町駅】徒歩5分。
大阪市西区立売堀1丁目の大型倉庫の募集です!
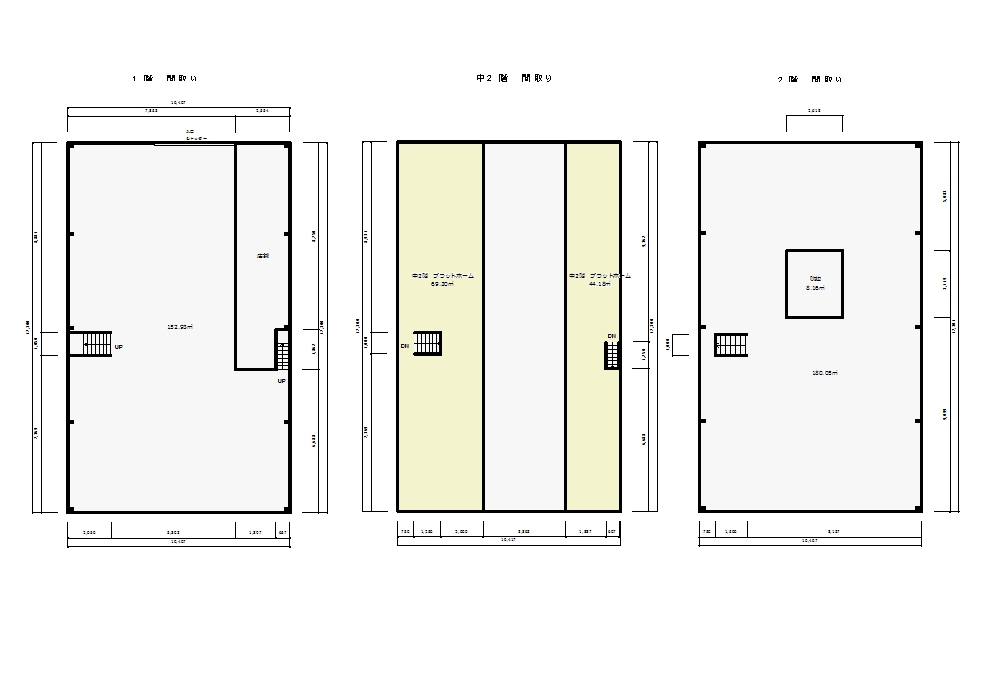
1階 46.26坪
2階 54.46坪
中2階 34.29坪
稀少な市内中心の大型倉庫です。
詳細は現地にてご確認をお願い致します。
内覧は平日のみ 前日までの要予約です。
| 備考 | − |
|---|
| 所在地 | 大阪市西区 立売堀1 googleマップでみる |
|---|---|
| 交通 | 大阪メトロ四つ橋線 「本町駅」駅徒歩 3分 |
| 物件構造 | 重量鉄骨 | 物件階層 | 2階建 |
|---|---|---|---|
| 物件種別 | 倉庫 | 完成年月 | 1970年 |
| 用途地域 | − | ||
| 物件設備 | シャター電動シャッターエアコントイレ照明空調電気上水道公共下水動力電気 − | ||
| 物件番号 | US1-05354 |
|---|---|
| サイト名 | 大阪の貸倉庫・貸工場・売買 |
06-6657-7090
所在地:大阪府大阪市住之江区南加賀屋2-8-25セジュール24 1階
アクセス:大阪メトロ住之江公園駅4番出口新なにわ筋を渡ってスグ
似た物件を探したい、最新の物件情報を知りたい、希望の物件条件で見つけて欲しい、などお気軽にお問い合わせ下さい。