大阪市住之江区新北島3の賃貸
大阪市住之江区新北島3の貸し倉庫物件 詳細
この物件情報は【】に作成されたものです。













大阪メトロ【住之江公園駅】徒歩4分。
駅近の好立地に新築倉庫事務所が募集中です!!
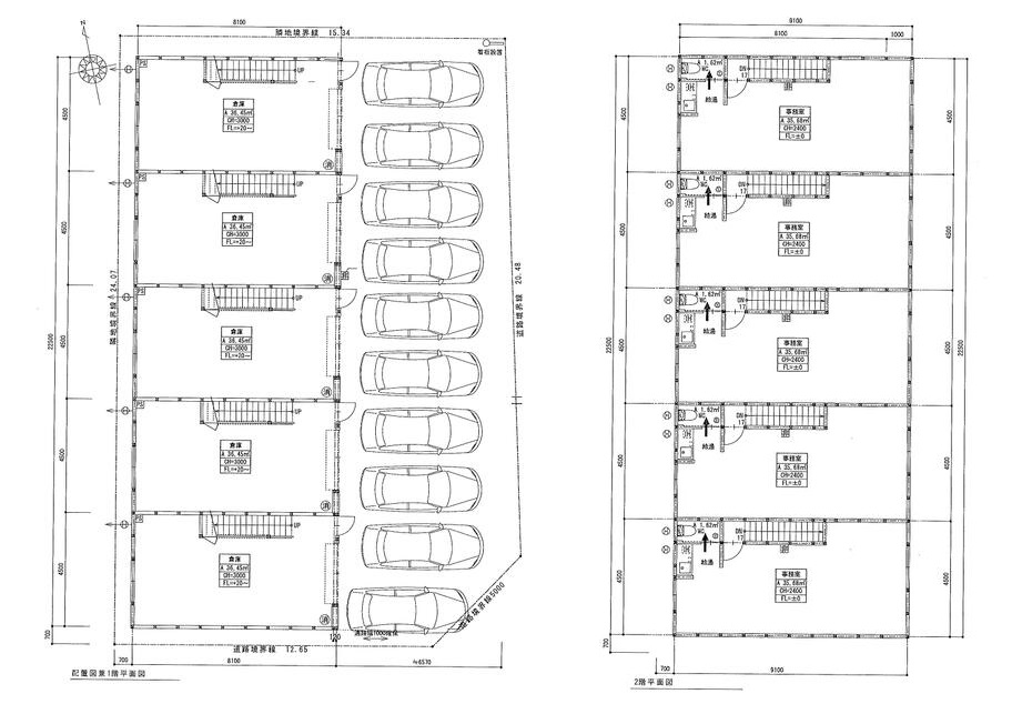
1階 倉庫/約10坪
2階 事務所/約10坪
建物前に普通車2台の駐車スペース有り。
各種営業所にピッタリです。
業種はご相談下さい!
| 備考 | − |
|---|
| 所在地 | 大阪市住之江区 新北島3 googleマップでみる |
|---|---|
| 交通 | 大阪メトロ四つ橋線 「住之江公園駅」駅徒歩 4分 |
| 物件構造 | 木造 | 物件階層 | 2階建 |
|---|---|---|---|
| 物件種別 | 倉庫 | 完成年月 | 2020年2月 |
| 用途地域 | 第1種住居地域 | ||
| 物件設備 | シャタートイレ電気上水道公共下水 − | ||
| 物件番号 | US1-05348 |
|---|---|
| サイト名 | 大阪の貸倉庫・貸工場・売買 |
06-6657-7090
所在地:大阪府大阪市住之江区南加賀屋2-8-25セジュール24 1階
アクセス:大阪メトロ住之江公園駅4番出口新なにわ筋を渡ってスグ
似た物件を探したい、最新の物件情報を知りたい、希望の物件条件で見つけて欲しい、などお気軽にお問い合わせ下さい。