ËÃæ»Ô¿À½£Ä®¤ÎÄÂÂß
ËÃæ»Ô¿À½£Ä®¤ÎÂߤ·ÁÒ¸Ëʪ·ï ¾ÜºÙ
¤³¤Îʪ·ï¾ðÊó¤Ï¡Ú¡Û¤ËºîÀ®¤µ¤ì¤¿¤â¤Î¤Ç¤¹¡£













ËÃæ»Ô¿À½§Ä®¤è¤ê¡¢
±¿Á÷¡¦Î®ÄÌ»ö¶È¼Ô¸þ¤±¤ÎÂç·¿ÁҸˤ¬Êç½¸Ãæ¤Ç¤¹¡£
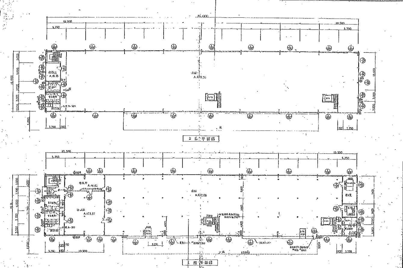
±ä¤Ù2,688Ö
1³¬¡¡1,344Ö
2³¬¡¡1,344Ö
¥¥å¡¼¥Ó¥¯¥ë¡¦¥ê¥Õ¥È2´ðÉÕ¤
Á°ÌÌÆ»Ï©¤â¹¤¯Âç·¿¼Öξ¿ÊÆþ¤â²Äǽ¤Ç¤¹¡Ê¹â¾²¼°¡Ë¡£
ÄÂÂߤǤϵ©¾¯¤ÊÂç·¿ÁÒ¸Ëʪ·ï¡¢
¾ò·ï¤Ï¤´ÁêÃ̲¼¤µ¤¤¡£
| À®Ìó¾õ¶· | |
|---|---|
| Ä¡¡ÎÁ | - |
| ´ÉÍýÈñ¡§-¶¦±×Èñ¡§- | |
| Éß¶â¡§-¡ÃÎé¶â¡§- | |
| Êݾڶ⡧-¡Ã²òÌó°ú¡§- | |
| ÄÚ¡¡¿ô | 814.5ÄÚ¡¡·úʪÌÌÀÑ¡§2688m2 |
| È÷¹Í | ¡Ý |
|---|
| ½êºßÃÏ | ËÃæ»Ô ¿À½£Ä® google¥Þ¥Ã¥×¤Ç¤ß¤ë |
|---|---|
| ¸òÄÌ | ºåµÞ¿À¸ÍÀþ ¡Ö¿ÀºêÀî±Ø¡×±ØÅÌÊâ 9ʬ |
| ʪ·ï¹½Â¤ | Å´¹ü | ʪ·ï³¬ÁØ | 2³¬·ú |
|---|---|---|---|
| ʪ·ï¼ïÊÌ | ÁÒ¸Ë | ´°À®Ç¯·î | ¡Ý |
| ÍÑÅÓÃϰè | ¹©¶ÈÃϰè | ||
| ʪ·ïÀßÈ÷ | ¥·¥ã¥¿¡¼ÅÅÆ°¥·¥ã¥Ã¥¿¡¼¥¨¥¢¥³¥ó¥È¥¤¥ì¶õÄ´Ãó¼Ö¾ì¥ê¥Õ¥ÈÅŵ¤¾å¿åÆ»¸ø¶¦²¼¿åưÎÏÅŵ¤ ¡Ý | ||
| ʪ·ïÈÖ¹æ | US1-05328 |
|---|---|
| ¥µ¥¤¥È̾ | Âçºå¤ÎÂßÁҸˡ¦Âß¹©¾ì¡¦ÇäÇã |
072-737-6699
½êºßÃÏ¡§ÂçºåÉÜ̧ÌÌ»Ô̧ÌÌ1-9-21
¥¢¥¯¥»¥¹¡§ºåµÞ̧Ì̱ؤè¤êÅì¤ØÅÌÊâ2ʬ¡ª±ØÁ°¥í¡¼¥¿¥ê¡¼¤è¤ê¥¹¥°ÌܤÎÁ°¡ª
06-6657-7090
½êºßÃÏ¡§ÂçºåÉÜÂçºå»Ô½»Ç·¹¾¶èÆî²Ã²ì²°2-8-25¥»¥¸¥å¡¼¥ë24 1³¬
¥¢¥¯¥»¥¹¡§Âçºå¥á¥È¥í½»Ç·¹¾¸ø±à±Ø4Èֽиý¿·¤Ê¤Ë¤ï¶Ú¤òÅϤäƥ¹¥°
»÷¤¿Êª·ï¤òõ¤·¤¿¤¤¡¢ºÇ¿·¤Îʪ·ï¾ðÊó¤òÃΤꤿ¤¤¡¢´õ˾¤Îʪ·ï¾ò·ï¤Ç¸«¤Ä¤±¤ÆÍߤ·¤¤¡¢¤Ê¤É¤ªµ¤·Ú¤Ë¤ªÌ䤤¹ç¤ï¤»²¼¤µ¤¤¡£