大阪市西区千代崎2の賃貸
大阪市西区千代崎2の貸し倉庫物件 詳細
この物件情報は【】に作成されたものです。













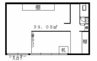
約12坪ほどの倉庫、
千代崎に募集開始です。
駅も近く、間口もそこそこありそうなので
使いやすそうですね。
また、物件は現状有姿となりますので詳細はお問合せ下さいませ。
| 備考 | − |
|---|
| 所在地 | 大阪市西区 千代崎2 googleマップでみる |
|---|---|
| 交通 | 大阪メトロ長堀鶴見緑地線 「ドーム前千代崎駅」駅徒歩 2分 |
| 物件構造 | 木造 | 物件階層 | 2階建 |
|---|---|---|---|
| 物件種別 | 倉庫 | 完成年月 | − |
| 用途地域 | − | ||
| 物件設備 | トイレ電気上水道公共下水 − | ||
| 物件番号 | US1-04077 |
|---|---|
| サイト名 | 大阪の貸倉庫・貸工場・売買 |
06-6657-7090
所在地:大阪府大阪市住之江区南加賀屋2-8-25セジュール24 1階
アクセス:大阪メトロ住之江公園駅4番出口新なにわ筋を渡ってスグ
似た物件を探したい、最新の物件情報を知りたい、希望の物件条件で見つけて欲しい、などお気軽にお問い合わせ下さい。