¿áÅĻԹ¾ºäÄ®3¤ÎÄÂÂß
¿áÅĻԹ¾ºäÄ®3¤ÎÂߤ·ÁÒ¸Ëʪ·ï ¾ÜºÙ
¤³¤Îʪ·ï¾ðÊó¤Ï¡Ú¡Û¤ËºîÀ®¤µ¤ì¤¿¤â¤Î¤Ç¤¹¡£













Ãϲ¼Å´¸æÆ²¶ÚÀþ¡Ö¹¾ºä¡×±Ø¤«¤é¡¢ÅÌÊ⣹ʬ
¡ÖËÄšױؤ«¤é¡ÖÉþÉô¡×±Ø¤ò¤Ä¤Ê¤°¡¢
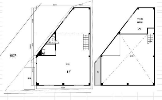
ÉÜÆ»£±£´£µ¹æÀþ±è¤¤¤Î2³¬·ú¤ÆÂߤ·ÁҸˡ£
1³¬¡§92.24Ö
2³¬¡§19.75Ö
1³¬¤ÎÁÒ¸ËÉôʬ¤Ï¿á¤È´¤±¤Ë¤Ê¤Ã¤Æ¤¤¤Æ¡¢
Å·°æ¹â¤ò³ÎÊݤ·¤Æ¤Þ¤¹¡£
2³¬Éôʬ¤Ë¡¢»ö̳½ê¥¹¥Ú¡¼¥¹¤â¤¢¤ê¡£
µëÅò¼¼¡¢¥È¥¤¥ìÀìÍѤǤ¹¡£
¹ñÆ»£´£²£³¹æÀþ¡¢¿·¸æÆ²¶Ú¤â¤¹¤°¶á¤¯¤Ê¤Î¤Ç¡¢
¼Ö¤Ç¤Î¥¢¥¯¥»¥¹¤¬¤¤¤¤¾ì½ê¡£
¥Ð¥¹Ää¤âÌܤÎÁ°¤Ê¤Î¤Ç¡¢Ä̶ФˤâÊØÍø¤Ç¤¹¤Í¡£
¡üÄÂÎÁ¡§£²£°£°¡¤£°£°£°±ß¡Ê´ÉÍýÈñ¹þ¤ß¡Ë
¡üÉß¶â¡§£´¥ö·î
¡üÎé¶â¡§2¥ö·î
¤ªÌ䤤¹ç¤ï¤»¡¢¤ªÂÔ¤Á¤·¤Æ¤ª¤ê¤Þ¤¹¡£
| À®Ìó¾õ¶· | |
|---|---|
| Ä¡¡ÎÁ | - |
| ´ÉÍýÈñ¡§-¶¦±×Èñ¡§- | |
| Éß¶â¡§-¡ÃÎé¶â¡§- | |
| Êݾڶ⡧-¡Ã²òÌó°ú¡§- | |
| ÄÚ¡¡¿ô | 33.9ÄÚ¡¡·úʪÌÌÀÑ¡§112m2 |
| È÷¹Í | ¡Ý |
|---|
| ½êºßÃÏ | ¿áÅÄ»Ô ¹¾ºäÄ®3 google¥Þ¥Ã¥×¤Ç¤ß¤ë |
|---|---|
| ¸òÄÌ | Âçºå¥á¥È¥í¸æÆ²¶ÚÀþ ¡Ö¹¾ºä±Ø¡×±ØÅÌÊâ 9ʬ |
| ʪ·ï¹½Â¤ | Å´¹ü | ʪ·ï³¬ÁØ | 2³¬·ú |
|---|---|---|---|
| ʪ·ï¼ïÊÌ | ÁÒ¸Ë | ´°À®Ç¯·î | 1993ǯ3·î |
| ÍÑÅÓÃϰè | ¡Ý | ||
| ʪ·ïÀßÈ÷ | ¥·¥ã¥¿¡¼¥È¥¤¥ìµëÅòÃó¼Ö¾ì ¡Ý | ||
| ʪ·ïÈÖ¹æ | US1-04018 |
|---|---|
| ¥µ¥¤¥È̾ | Âçºå¤ÎÂßÁҸˡ¦Âß¹©¾ì¡¦ÇäÇã |
072-737-6699
½êºßÃÏ¡§ÂçºåÉÜ̧ÌÌ»Ô̧ÌÌ1-9-21
¥¢¥¯¥»¥¹¡§ºåµÞ̧Ì̱ؤè¤êÅì¤ØÅÌÊâ2ʬ¡ª±ØÁ°¥í¡¼¥¿¥ê¡¼¤è¤ê¥¹¥°ÌܤÎÁ°¡ª
06-6657-7090
½êºßÃÏ¡§ÂçºåÉÜÂçºå»Ô½»Ç·¹¾¶èÆî²Ã²ì²°2-8-25¥»¥¸¥å¡¼¥ë24 1³¬
¥¢¥¯¥»¥¹¡§Âçºå¥á¥È¥í½»Ç·¹¾¸ø±à±Ø4Èֽиý¿·¤Ê¤Ë¤ï¶Ú¤òÅϤäƥ¹¥°
»÷¤¿Êª·ï¤òõ¤·¤¿¤¤¡¢ºÇ¿·¤Îʪ·ï¾ðÊó¤òÃΤꤿ¤¤¡¢´õ˾¤Îʪ·ï¾ò·ï¤Ç¸«¤Ä¤±¤ÆÍߤ·¤¤¡¢¤Ê¤É¤ªµ¤·Ú¤Ë¤ªÌ䤤¹ç¤ï¤»²¼¤µ¤¤¡£